Property Detail

1227 Calle Ultimo

Oceanside CA 92056

$950,000

Status: Active

Property Details

Description

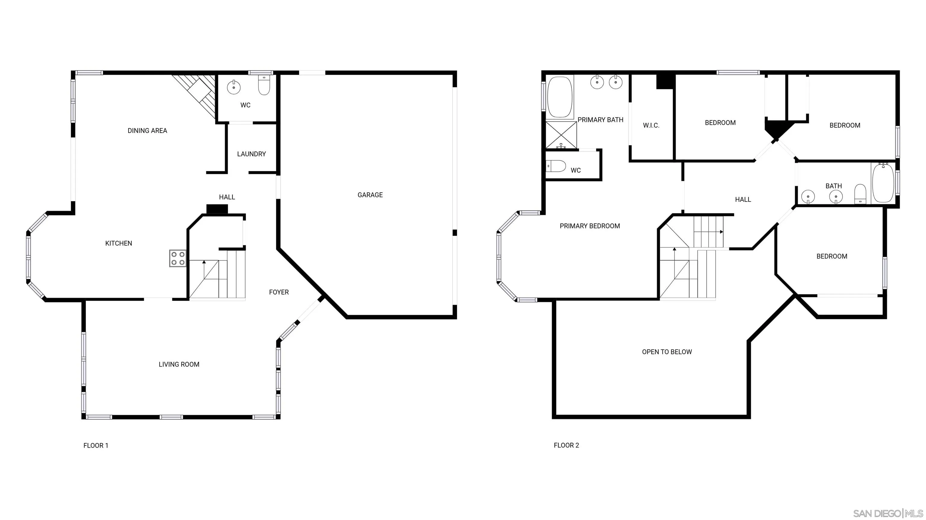
Welcome to this stunning property that exudes elegance and comfort. The living room is graced with a cozy fireplace, complemented by a neutral color paint scheme, and fresh interior paint throughout. The kitchen is a chef's dream with an accent backsplash adding a touch of sophistication. The primary bathroom is a sanctuary with double sinks, and a separate tub and shower for ultimate relaxation. Step outside to a patio overlooking a fenced-in backyard, perfect for entertaining. The highlight of this outdoor space is a private in-ground pool, offering a refreshing retreat on warm days. This property is a perfect blend of style and functionality. Don't miss out on this captivating home.

Map Location

  • Log in
  • ×