
Status: Active
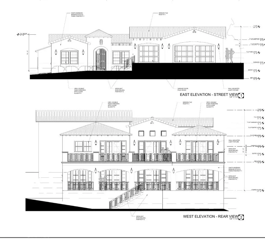
This remarkable 8,487 square-foot lot provides an exceptional opportunity to build a home in the picturesque hills behind Whittier College. The property comes with meticulously crafted plans for a spacious 3,600-square-foot residence, complete with a three-car garage, designed to maximize the breathtaking views of the surrounding landscape. Situated on a tranquil street, surrounded by million dollar homes, the lot offers a serene environment while being conveniently located near Penn Park, perfect for outdoor activities and relaxation. Just a short stroll away, you'll find the vibrant Uptown Whittier, a hub of dining and shopping options that cater to a variety of tastes and preferences. The property's prime location ensures easy access to a lively community atmosphere without sacrificing the peace and quiet of a residential neighborhood. The current owner has already made significant progress on the plans and permits, providing a seamless process for you to bring your dream home to life. Alternatively, you have the flexibility to design your own unique living space to match your personal vision. Opportunities like this are rare, making it an ideal choice for those seeking a harmonious blend of natural beauty and urban convenience in a highly sought-after Whittier neighborhood.