
Status: Active
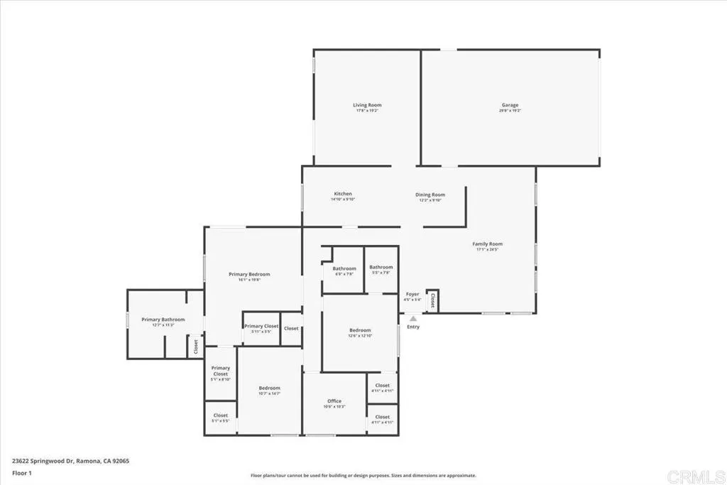
Sitting on a level .4-acre fenced lot on a cul-de-sac, this custom home gives you the space and layout everyone wants. Inside, its light, bright with soaring ceilings and tons of windows. Two primary suites plus two additional bedroomsall four with walk-in closets. The backyard is set up for entertaining with an outdoor kitchen, covered patio and a full-size basketball court. Plenty of room for horses or a pool. All of this in San Diego Country Estates, where the country club vibe and community lifestyle make every day feel like a vacation with swimming, tennis, golf, horseback riding, hiking and picklball.