
Status: Active
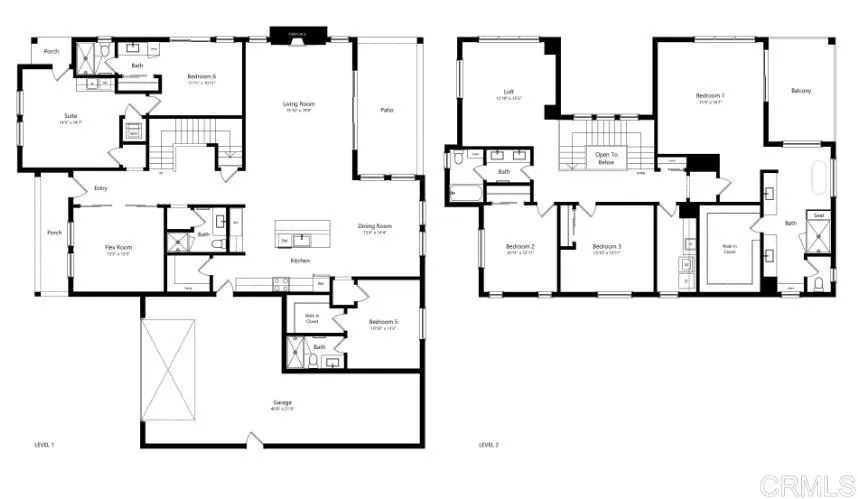
Brand New Construction at Stonemark Two-story Main house 5 bedrooms, 4 bath plus loft with an attached JADU (1bd/1ba guesthouse ). Fenced backyard with built in barbecue and fire pit. CHEF-CALIBER KITCHENS - Upgraded GE Cafe Series appliances, including a 48" built-in refrigerator. All-gas Wolf range and high-performance stainless steel ventilation hood. Stainless steel farmhouse-style sink with 3/4 HP garbage disposal. Quartz countertops with full tiled backsplash. Extra-large kitchen island with waterfall quartz countertops and built-in storage. Soft-close shaker cabinetry with black hardware and adjustable shelving. Walk-in pantry with ample storage. Designer pendant lighting and under-cabinet illumination. LUXURIOUS INTERIORS - 10' foot volume ceilings and 8-foot insulated fiberglass doors throughout. Vinyl plank flooring in main living areas with plush carpet in bedrooms, closets, and staircases. Recessed fire sprinklers for added safety. Elegant black contemporary door hardware and hinges. Designer roller shades for privacy in bedrooms and bathrooms. Remote-operated 5' linear built-in fireplace with wood mantels. EXCEPTIONAL EXTERIORS - Each primary home includes an approx. 500 sq. ft. JADU suite with a private entrance, kitchenette with quartz countertops, full-size under-counter fridge, gas washer/dryer, and a luxurious bathroom with a floor-to-ceiling tiled walk-in shower. Designer-inspired exterior lighting enhances the contemporary curb appeal. Spacious private patios with built-in barbecue and fire pit. Durable concrete tile roofing and insulated metal garage do