
Status: Active
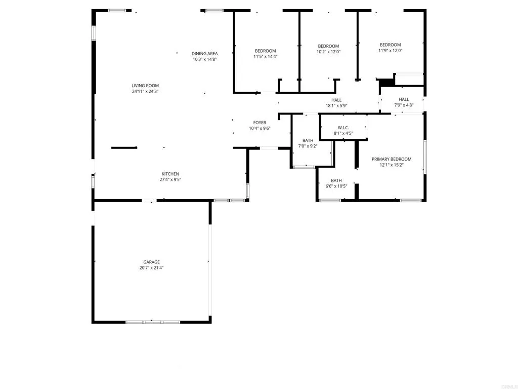
Single story 4-bedroom, 2-bathroom classic gem updated and upgraded with a timeless sense of style and taste. Combining quality materials and smart design for durability, functionality and comfort. This contemporary home offers an open and natural light-filled great room with surround sound. The entire floor plan is appointed with durable, easy-to-care surfaces and floors. Expansive kitchen with abundant storage, center island with skylight. Four bedrooms which includes the well-appointed primary suite providing built-in storage and walk-in closet space. Youll notice lovingly and thoughtfully placed attention to detail and quality throughout this spacious home. Oversized 2-car garage with designated laundry area, 21300-watt solar panel and whole house Tesla battery system and water filtration systems. Energy efficient doors, windows and HVAC heat-pump with High R-Value duct work. Sited on an expansive acre flat useable, professionally landscaped lot with a peek a boo ocean view located in this sought after, pride of ownership neighborhood of Olde Carlsbad.