
Status: Active
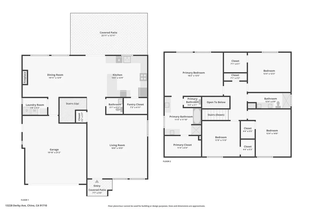
Move-in ready 4-bedroom, 2.5-bath home featuring shutters throughout, custom crown molding, and upgraded baseboards. The backyard is beautifully designed for entertaining, offering the perfect space for gatherings and relaxation. This home includes a newer HVAC system, newer water heater, fresh exterior paint, and a newer garage door with opener. Solar is also included for added energy efficiency. Conveniently located near freeways, schools, and shopping, this home combines comfort, style, and accessibility.